Pubblico/Nuova sede Amministrazione comunale
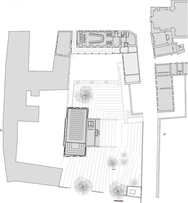
Il progetto per la nuova sede dell’Amministrazione comunale si è realizzato garantendo la salvaguardia del carattere dell’edificio esistente, caro alla memoria degli abitanti di Novazzano, e realizzando una comunicazione fra la piazza e il giardino retrostante. Il comparto storico si è così arricchito di un nuovo spazio pubblico che si lega alla fitta trama dei cortili. Si tratta di un progetto di trasformazione che ha visto la realizzazione di alcuni elementi di nuova concezione, senza rinunciare ad affermare la centralità, anche simbolica, della Casa Comunale come luogo pubblico per eccellenza.
Committente
Comune di Novazzano
Comune di Novazzano
Oggetto
Nuova sede Amministrazione comunale Novazzano
Nuova sede Amministrazione comunale Novazzano
Luogo
6883 Novazzano
6883 Novazzano
Incarico
Progetto e direzione architettonica
Progetto e direzione architettonica
Capo progetto
M + R (con Prof. Luca Ortelli)
M + R (con Prof. Luca Ortelli)
Ing. civile
Studio d'ingegneria Grignoli Muttoni e Partner - Lugano
Studio d'ingegneria Grignoli Muttoni e Partner - Lugano
Specialista energia
Enco Electric - Besazio
Enco Electric - Besazio
Specialista impianto di ventilazione HVAC
PROTEC - Ing. Tenore - Losone
PROTEC - Ing. Tenore - Losone
Anno
2007-2001
2007-2001
VSIA 416
5’190 m³
5’190 m³
Cod. Rif.
08 - NCN
08 - NCN









