Salta al contenuto principale
 


Industria/Micro Macinazione SA - Ristrutturazione e ampliamento

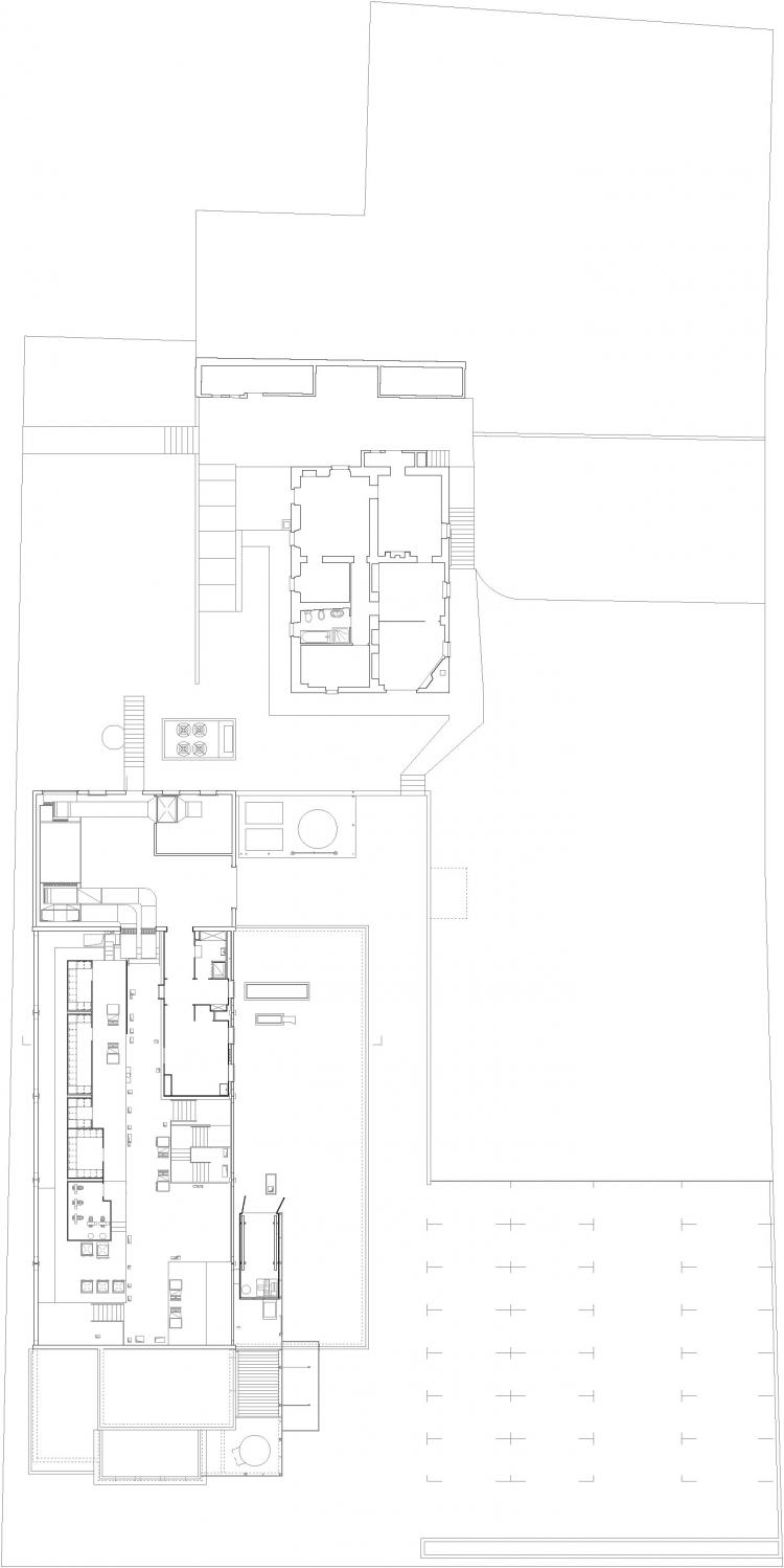
Rinnovamento globale degli spazi a partire da un edificio anni '60, di un solo piano, adibito a produzione farmaceutica in ambiente non classificato GMP. L'aspetto piú importante é rappresentato dalle nuove installazioni necessarie al controllo dell'aria all'interno degli ambienti di produzione, controlli messi in atto sia attraverso la disposizione dei locali di produzione, sia attraverso l'introduzione di nuove e ingenti infrastrutture tecniche. Il progetto prevede di sopraelevare di un piano l'edificio esistente e costruire gli spazi per la nuova tecnica. Un nuovo tetto metallico sottile e in leggera pendenza, sormontato da protuberanze di diversa dimensione è stato l'oggetto principale della riformulazione dell'involucro.


Committente
Micro - Macinazione SA

Oggetto
Ristrutturazione e ampliamento stabilimento farmaceutico

Luogo
6995 Molinazzo di Monteggio

Incarico
Progetto e direzione lavori

Capo progetto
M + R

Ing. civile
Ing. Alfio Casanova - Lugano

Ing. carpenteria metallica
Ing. Pescia - Ponte Capriasca

Specialista impianto di ventilazione HVAC
BRM Impianti Srl - Villaguardia (I)

Specialista impianto termosanitario
PROTEC - Ing. Tenore - Losone

Specialista impianto elettrico
Ing. Mauro Notari - Agno

Anno
2003-2000

VSIA 416
4800 m³

Cod. Rif.
00 - MM